PAK-M
Unitate de vid înalt centralizată pentru mai mulți utilizatori, ideală pentru fumul de sudură și aplicații de menaj
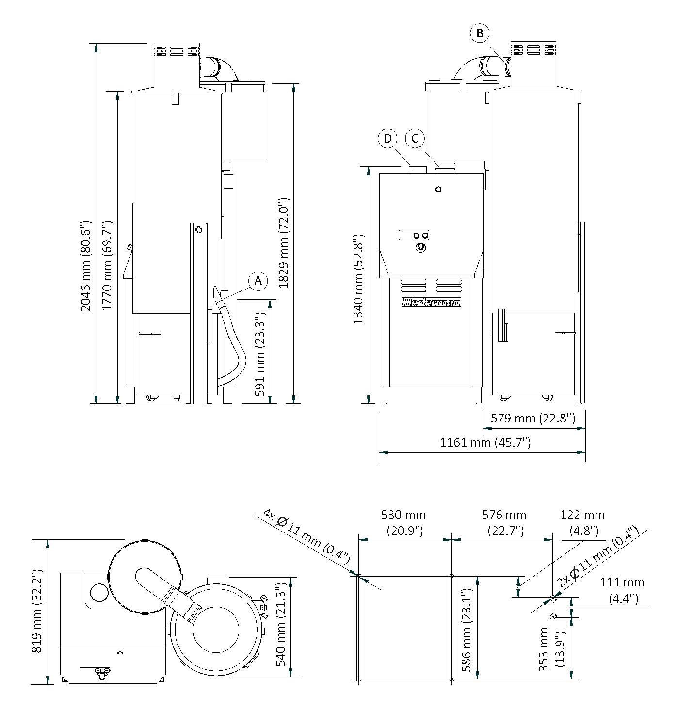
Nederman PAK-M este o soluție de vid centralizată de înaltă eficiență, proiectată pentru mai multe puncte de extracție, asigurând un flux de aer constant și performanțe fiabile pentru 1-5 utilizatori. Ideal pentru fumul de sudură, praf și particule, se adaptează la diverse tipuri de praf incombustibil, îmbunătățind siguranța și eficiența operațională.
Cu controlul presiunii constante, PAK-M ajustează viteza suflantei în timp real pentru a menține un flux de aer constant, prevenind vârfurile de presiune care ar putea perturba calitatea sudării. Funcția sa VFD de economisire a energiei reduce consumul de energie prin ajustarea la solicitările variabile de extracție, în timp ce funcția de pornire/oprire automată oprește unitatea atunci când este inactivă, reducând și mai mult consumul de energie.
Construit pentru funcționare continuă, PAK-M oferă până la 30.000 de ore de performanță fiabilă în condiții specifice. Siguranța este prioritară cu funcții precum protecția la supraîncălzire, prevenirea scânteilor și alerte inteligente pentru a asigura o funcționare sigură. Sistemul de răcire pe mai multe niveluri menține temperaturile sigure, chiar și în condiții dificile, cum ar fi cererea scăzută de extracție, conducte lungi sau evacuare blocată.
Această unitate versatilă suportă atât extracția fumului de sudură, cât și curățenia industrială, cu extracție automată controlată de senzori și semnale pilot pentru îmbunătățirea eficienței producției. De asemenea, oferă extracție centralizată cu conexiuni flexibile la unelte pentru controlul prafului în întreaga instalație.
Reducerea costurilor de operareeste
posibilă datorită variatorului de frecvență variabilă (VFD), care se adaptează la cerințele în timp real și minimizează consumul de energie
. Nivelurile scăzute de zgomot în timpul funcționării sunt posibile datorită ventilatorului montat într-o carcasă acustică, iar VFD operează unitatea la turația minimă necesară pentru a menține nivelul de vid dorit.
Filtrarea îmbunătățită este asigurată de filtrul secundar opțional HEPA H14, în special în aplicațiile de sudură în interior care generează crom hexavalent.



Recenzii
Nu există recenzii până acum.